天津天怡建筑規劃設計有限公司于2014年根據建筑設計市場發展趨勢,成立了BIM設計部,主要服務于公司內部的項目深化設計和承接開發商項目優化設計。公司整合設計和施工個自優勢,致力于裝配式建筑PC構建的深化和優化,同時為施工提供深化設計。服務于集團的標準化施工要求,提升建筑產品的質量。目前BIM設計部與開發商基于BIM深化設計完成多項,主要包括管線綜合類和復雜基礎的模擬施工類型。并與天津中交綠城城市建設發展有限公司,天津市光合墅開發有限公司,北科泰達投資有限公司成合作協議,對其開發項目進行深化和優化設計。公司內部管線復雜施工圖項目管線綜合已經作為深化設計的有效工具。
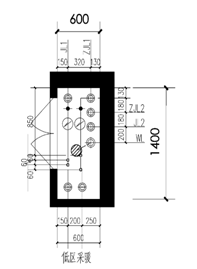
1.管井深化:

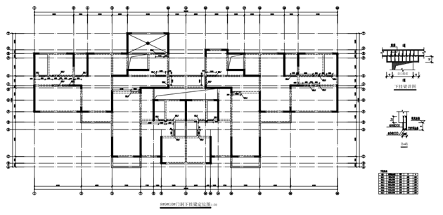
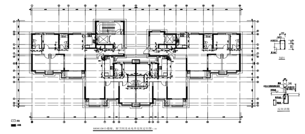
2.地庫管線綜合:

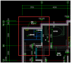
3.外檐及基礎深化:





4. 裝配式PC深化和施工圖深化目前正在有序推進。深化具體成果如下:

